Kawalerka w dobrej cenie - dobrze skomunikowana z Bydgoszczą i Nakłem nad Notecią - po remoncie instalacji
Oferta tylko w naszym biurze!
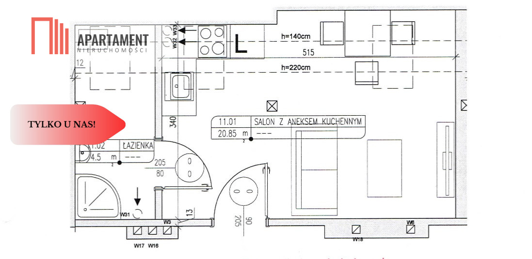
Zapraszam na prezentację kawalerki o powierzchni 25,22 mkw, które znajduje się w bardzo pożądanej lokalizacji, jaką jest Ślesin w powiecie nakielskim!
Mieszkanie wyremontowane w nowoczesnym standardzie, gotowe do zamieszkania, znajduje się na II piętrze, dwupiętrowego budynku wielorodzinnego.
Mieszkanie składa się z:
- pokoju dziennego (częściowo umeblowany) z aneksem kuchennym (zabudowa kuchenna wykonana pod wymiar,
- łazienki (wyposażona w sanitariaty, wykończenie ścian i podłogi - płytki ceramiczne).
Centralne ogrzewanie zasilane ze wspólnej kotłowni.
Nowa instalacja grzewcza oraz elektryczna.
Ciepła woda podgrzewana z bojlera elektrycznego sterowanego indywidualnie w mieszkaniu.
Mieszkanie znajduje się w niewielkiej, stylowej kamienicy z początku XX wieku.
Budynek przeszedł generalny remont w 2021 roku, podczas którego wykonano remont elewacji oraz klatek schodowych.
Budynek od frontu osłonięty zielenią, od podwórza do zaaranżowania na strefę wypoczynkową lub ogrodową.
Dogodne położenie pod względem dostępu do dyskontów spożywczych, szkoły, przedszkola.
W bliskiej okolicy Stawy Ślesińskie z hodowlą karpia oraz wytwórnia regionalnych serów rzemieślniczych. Teren leśny będzie atrakcyjny dla lubiących spacery i aktywność na świeżym powietrzu.
Lokalizacja dobrze skomunikowana dzięki DK10 oraz połączeniu kolejowemu. Szybki dojazd do większych miast: Nakło n. Notecią - 8km, Bydgoszcz - 12km lub PKP Bydgoszcz Główna -20 min.
Kontaktując się z agentem odpowiedzialnym za ofertę, koniecznie zapytaj jakie są warunki współpracy z naszym biurem oraz co w związku ze współpracą zapewniamy.
Dbając o bezpieczeństwo klientów sprzedających, a często także na ich wyraźne życzenie, nie podajemy adresów nieruchomości bez podpisania uprzednio umowy o pośrednictwo w kupnie lub najmie.
Prowizja jest uzgadniania indywidualnie, na spotkaniu i zależy od zakresu wykonywanych obowiązków na rzecz klienta zamawiającego.
Wszelkie podane przez Biuro informacje nie są ofertą w rozumieniu Kodeksu Cywilnego.
Zgodnie z Ustawą z dnia 26 lipca 2024 r. o zmianie ustawy o prawie autorskim i prawach pokrewnych, ustawy o ochronie baz danych oraz ustawy o zbiorowym zarządzaniu prawami autorskimi i prawami pokrewnymi, wykorzystywanie autorskich pomysłów, rozwiązań, kopiowanie, rozpowszechnianie zdjęć, fragmentów grafiki, tekstów opisów w celach zarobkowych, bez zezwolenia autora jest zabronione i stanowi naruszenie praw autorskich oraz podlega karze. Znaki towarowe i graficzne są własnością firmy Nieruchomości Apartament.
Tylko u nas! Kawalerka w świetnej cenie. Bez PCC
lokalizacja: Ślesin, Sportowa
119 000,00 PLN
4 168,13 PLN
Dane szczegółowe
- Typ transakcji: sprzedaż
- Typ nieruchomości: Mieszkanie
- Lokalizacja: Ślesin, Sportowa
- Powierzchnia:28,55 m2
- Liczba pokoi: 1
- Rok budowy: 1905
- Piętro: 2 z 2
- Numer oferty: 172934
- Cena: 119 000,00 PLN
- Cena za m2: 4 168,13 PLN
Opis nieruchomości
Kontakt do opiekuna:
NIERUCHOMOŚCI APARTAMENT