Tylko u nas! Duże jasne mieszkanie inwestycja

lokalizacja: Laskowice

684 400,00 PLN

5 900,00 PLN

Opis nieruchomości

Oferuję na sprzedaż nowoczesne mieszkanie w zabudowie bliźniaczej, położone w malowniczej miejscowości Laskowice Pomorskie. Nieruchomość znajduje się w spokojnym i cichym otoczeniu, z dogodnym dojazdem asfaltową drogą prowadzącą bezpośrednio na posesję.



Mieszkanie o powierzchni użytkowej 116 mkw to doskonała propozycja dla rodziny-
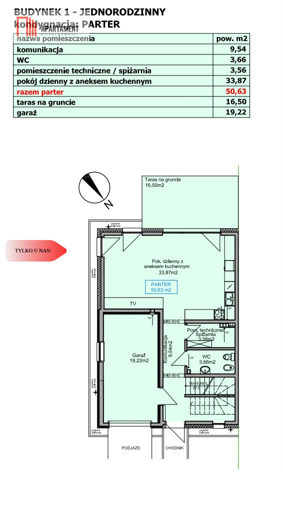
na parterze o powierzchni ok 51 mkw zaprojektowano przestronny salon z  aneksem kuchennym z wyjściem na taras, łazienkę oraz pomieszczenie gospodarcze, które pomieści instalację powietrznej pompy ciepła.
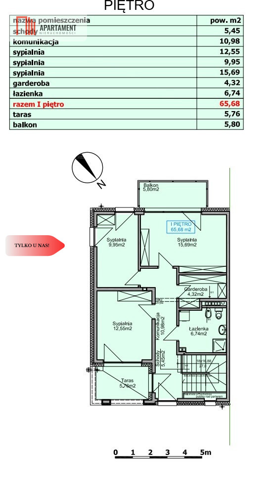
Na piętrze o pow. 65 mkw przewidziano przestrzeń na sypialnie, dodatkową łazienkę praz pokoje użytkowe; takie jak biuro czy siłownia. Do nieruchomości przynależy  działka o powierzchni 400 mkw oraz udział w drodze wewnętrznej.

Istnieje możliwość zakupu garażu o powierzchni 19,22 mkw, który jest bezpośrednio sąsiadujący z lokalem. Cena garażu wynosi 2 500 zł/mkw - jest to doskonałe rozwiązanie dla osób poszukujących dodatkowej przestrzeni na samochód lub magazyn

Dom typu bliźniak, w którym mieści się lokal zostanie przygotowany w stanie deweloperskim, z zamontowanymi oknami oraz drzwiami zewnętrznymi. Budynek zostanie podłączony do sieci wodno- kanalizacyjnej oraz wyposażony w instalację pod powietrzną pompę ciepła i ogrzewanie podłogowe na całej powierzchni.

Nieruchomość znajduje się w doskonale skomunikowanej okolicy. W pobliżu znajdują się szkoła podstawowa, biblioteka, sklepy spożywcze, poczta, dworzec PKP oraz inne udogodnienia ułatwiające codzienne życie. Dodatkowym atutem jest położenie w odległości około 2,5 km od jeziora. Jest to idealne miejsce dla rodzin szukających nowoczesnego i komfortowego lokum w atrakcyjnej lokalizacji.  

Planowany termin oddania nieruchomości do użytkowania to druga połowa 2025 roku

* Wizualizacja ma charakter poglądowy i nie jest przedmiotem sprzedaży

Serdecznie zapraszam do kontaktu



Kontaktując się z agentem odpowiedzialnym za ofertę, koniecznie zapytaj jakie są warunki współpracy z naszym biurem oraz co w związku ze współpracą zapewniamy.
Dbając o bezpieczeństwo klientów sprzedających, a często także na ich wyraźne życzenie, nie podajemy adresów nieruchomości bez podpisania uprzednio umowy o pośrednictwo w kupnie lub najmie.

Prowizja jest uzgadniania indywidualnie, na spotkaniu i zależy od zakresu wykonywanych obowiązków na rzecz klienta zamawiającego.

Wszelkie podane przez Biuro informacje nie są ofertą w rozumieniu Kodeksu Cywilnego.

Zgodnie z Ustawą z dnia 26 lipca 2024 r. o zmianie ustawy o prawie autorskim i prawach pokrewnych, ustawy o ochronie baz danych oraz ustawy o zbiorowym zarządzaniu prawami autorskimi i prawami pokrewnymi, wykorzystywanie autorskich pomysłów, rozwiązań, kopiowanie, rozpowszechnianie zdjęć, fragmentów grafiki, tekstów opisów w celach zarobkowych, bez zezwolenia autora jest zabronione i stanowi naruszenie praw autorskich oraz podlega karze. Znaki towarowe i graficzne są własnością firmy Nieruchomości Apartament.

Plany Nieruchomości

Kontakt do opiekuna:

NIERUCHOMOŚCI APARTAMENT

SYLWIA GOŁUŃSKA
Nieprawidłowy adres E-mail
Mapa

Strona korzysta z plików cookie w celu realizacji usług zgodnie z Polityką prywatności. Możesz określić warunki przechowywania lub dostępu do cookie w Twojej przeglądarce.