LOKAL USŁUGOWY DO WYNAJĘCIA

lokalizacja: Iława

7 380,00 PLN

24,54 PLN

Opis nieruchomości

Szukasz miejsca, które pracuje na Twój biznes od pierwszego dnia? Ten lokal w Iławie przy ul. Wyszyńskiego to świetna propozycja dla firmy, która chce być widoczna, mieć wygodny dostęp dla klientów i możliwość elastycznej aranżacji.

Najważniejsze informacje



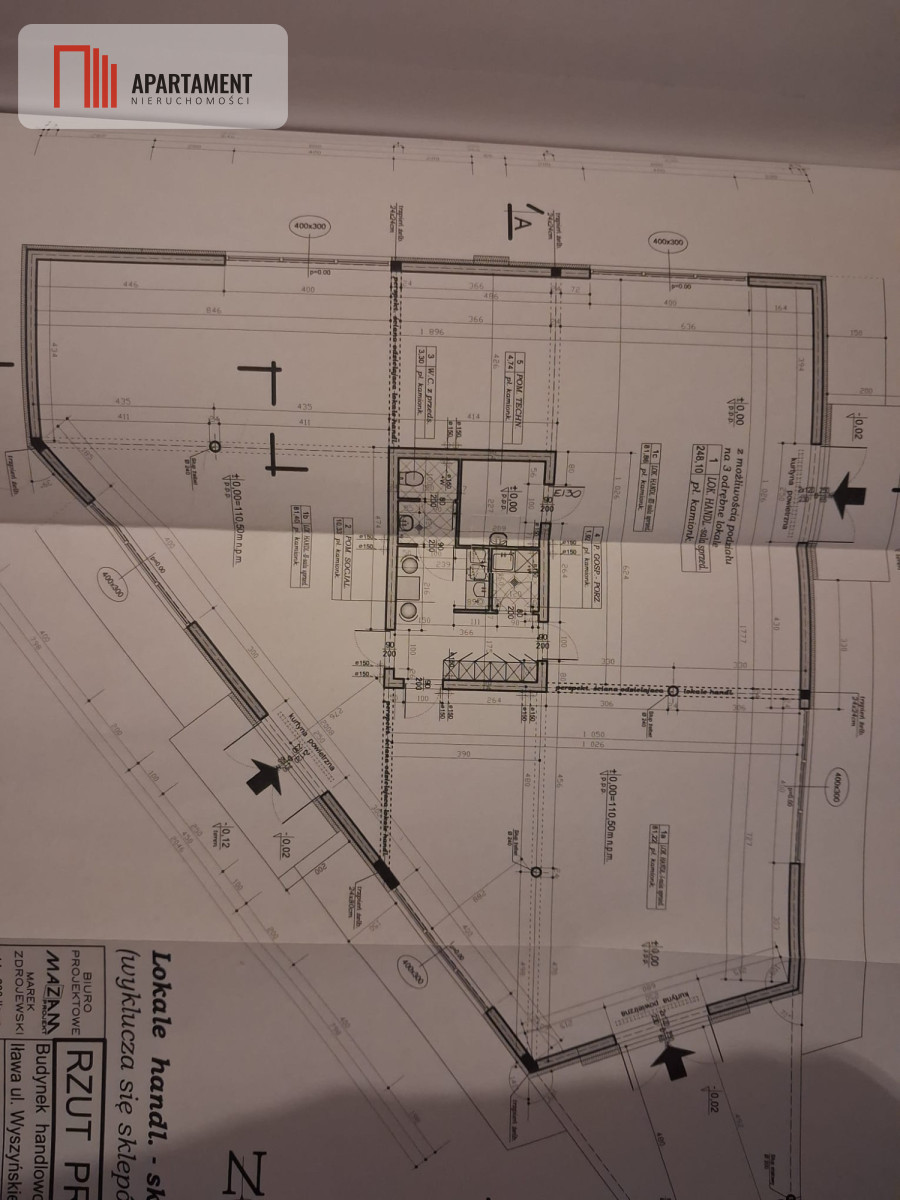
  • Powierzchnia: 268,39 m²

  • Lokalizacja: Iława, ul. Wyszyńskiego

  • Układ: możliwość podziału na 3 niezależne lokale (dzięki 3 odrębnym wejściom)


Przeznaczenie: idealny pod usługi, handel, gabinety, biura, placówkę medyczną, fitness, szkołę językową, showroom, punkt obsługi klienta.
To nieruchomość, która dopasuje się do Twojego pomysłu:


  • możesz wynająć całość i stworzyć duży, reprezentacyjny punkt usługowy,

  • albo wydzielić 3 osobne moduły - świetne, jeśli chcesz:

  • prowadzić kilka działalności w jednym miejscu,

  • podnająć część powierzchni,

  • rozdzielić strefę obsługi klienta / zaplecze / magazyn.


Atuty lokalu, które robią różnicę



  • 3 niezależne wejścia - komfort dla klientów i pracowników, możliwość podziału bez komplikacji

  • Duży metraż 268,39 m² - swoboda aranżacji i rozwoju firmy

  • Potencjał pod różne branże - od handlu po usługi specjalistyczne

  • Świetna ekspozycja i rozpoznawalna lokalizacja - ważne przy działalności stacjonarnej

  • Możliwość stworzenia kilku gabinetów / sal / stanowisk lub otwartej przestrzeni typu open space


Dlaczego Iława to dobre miejsce na biznes?

Iława to miasto, które łączy stabilny rynek lokalny z dużym potencjałem turystycznym. Położona przy Jezioraku - najdłuższym jeziorze w Polsce - przyciąga mieszkańców regionu i gości przez cały rok. To oznacza:



  • stały ruch klientów (mieszkańcy + sezonowi odwiedzający),

  • rosnącą atrakcyjność dla usług i handlu,

  • dobre warunki do rozwijania działalności w mieście, które jest znane, lubiane i dynamiczne



Kontaktując się z agentem odpowiedzialnym za ofertę, koniecznie zapytaj jakie są warunki współpracy z naszym biurem oraz co w związku ze współpracą zapewniamy.
Dbając o bezpieczeństwo klientów sprzedających, a często także na ich wyraźne życzenie, nie podajemy adresów nieruchomości bez podpisania uprzednio umowy o pośrednictwo w kupnie lub najmie.

Prowizja jest uzgadniania indywidualnie, na spotkaniu i zależy od zakresu wykonywanych obowiązków na rzecz klienta zamawiającego.

Wszelkie podane przez Biuro informacje nie są ofertą w rozumieniu Kodeksu Cywilnego.

Zgodnie z Ustawą z dnia 26 lipca 2024 r. o zmianie ustawy o prawie autorskim i prawach pokrewnych, ustawy o ochronie baz danych oraz ustawy o zbiorowym zarządzaniu prawami autorskimi i prawami pokrewnymi, wykorzystywanie autorskich pomysłów, rozwiązań, kopiowanie, rozpowszechnianie zdjęć, fragmentów grafiki, tekstów opisów w celach zarobkowych, bez zezwolenia autora jest zabronione i stanowi naruszenie praw autorskich oraz podlega karze. Znaki towarowe i graficzne są własnością firmy Nieruchomości Apartament.

Kontakt do opiekuna:

NIERUCHOMOŚCI APARTAMENT

PATRYCJA FIGURSKA
Nieprawidłowy adres E-mail
Mapa

Strona korzysta z plików cookie w celu realizacji usług zgodnie z Polityką prywatności. Możesz określić warunki przechowywania lub dostępu do cookie w Twojej przeglądarce.