Zapraszam na prezentację
Bartosz
573 094 074
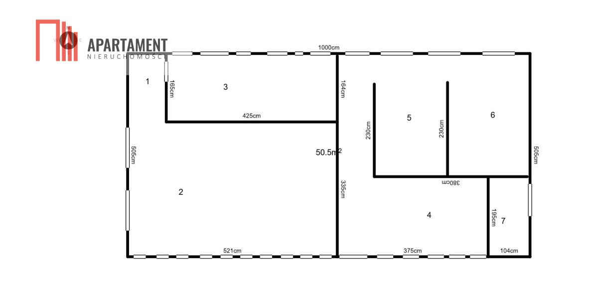
Przedmiotem oferty jest obiekt w stanie surowym otwartym o powierzchni 800 m2.
Pierwotnie budynek powstał na potrzeby działalności sportowej czyli do gry w squasha oraz klubu fitness. Na tym etapie budowy w obiekcie można dokonać małych modyfikacji w środku.
Budowa zaczęta w 2022 r. więc budynek w chwili obecnej jest w bardzo dobrym stanie.
Wykonano przyłącze wody oraz prądu.
Budynek o szerokości 20 m i długości 40 m. Odprowadzenie ścieków do zbiornika na posesji.
Załączony plan obiektu odzwierciedla układ pomieszczeń. Zdjęcia zamieszone w ogłoszeniu odzwierciedlają stan obecny budynku.
Doskonała inwestycja zarówno pod magazyny, produkcje czy inną działalność która wymaga dużych powierzchni. Stan budynku pozwala na dowolną aranżację.
Zapraszam do kontaktu i po dodatkowe informacje
Bartosz Kukliński
tel. 573 094 074
Kontaktując się z agentem odpowiedzialnym za ofertę, koniecznie zapytaj jakie są warunki współpracy z naszym biurem oraz co w związku ze współpracą zapewniamy.
Dbając o bezpieczeństwo klientów sprzedających, a często także na ich wyraźne życzenie, nie podajemy adresów nieruchomości bez podpisania uprzednio umowy o pośrednictwo w kupnie lub najmie.
Prowizja jest uzgadniania indywidualnie, na spotkaniu i zależy od zakresu wykonywanych obowiązków na rzecz klienta zamawiającego.
Wszelkie podane przez Biuro informacje nie są ofertą w rozumieniu Kodeksu Cywilnego.
Zgodnie z Ustawą z dnia 26 lipca 2024 r. o zmianie ustawy o prawie autorskim i prawach pokrewnych, ustawy o ochronie baz danych oraz ustawy o zbiorowym zarządzaniu prawami autorskimi i prawami pokrewnymi, wykorzystywanie autorskich pomysłów, rozwiązań, kopiowanie, rozpowszechnianie zdjęć, fragmentów grafiki, tekstów opisów w celach zarobkowych, bez zezwolenia autora jest zabronione i stanowi naruszenie praw autorskich oraz podlega karze. Znaki towarowe i graficzne są własnością firmy Nieruchomości Apartament.
Hala do własnej aranżacji
lokalizacja: Rgielsko
1 300 000,00 PLN
1 625,00 PLN
Dane szczegółowe
- Typ transakcji: sprzedaż
- Typ nieruchomości: Komercyjny
- Lokalizacja: Rgielsko
- Powierzchnia:800 m2
- Liczba pokoi: 6
-
Powierzchnia działki:
6 000 m2
- Numer oferty: 790006
- Cena: 1 300 000,00 PLN
- Cena za m2: 1 625,00 PLN
Opis nieruchomości
Kontakt do opiekuna:
NIERUCHOMOŚCI APARTAMENT