Dom w centrum Sępólna z widokiem na jezioro!

lokalizacja: Sępólno Krajeńskie

490 000,00 PLN

3 712,12 PLN

Opis nieruchomości

Dom w Sępólnie Krajeńskim! Powierzchnia domu 132 m². Działka 635 m²! Spokojna okolica! Blisko jeziora!

Przedmiotem sprzedaży jest dom o powierzchni 132 m², położony na działce o powierzchni 635 m² w malowniczej części Sępólna Krajeńskiego, zaledwie 70 metrów od jeziora. To wyjątkowa propozycja, która daje wiele możliwości - zarówno do zamieszkania, jak i inwestycyjnie (np. wynajem).

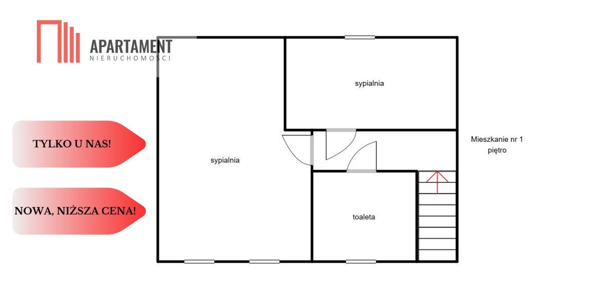
Dom został zaprojektowany jako dwa niezależne mieszkania - idealne rozwiązanie dla rodziny wielopokoleniowej lub pod wynajem.

Układ pomieszczeń:
Mieszkanie nr 1:
Parter:


  • kuchnia,

  • łazienka,

  • jadalnia,

  • salon

  • sypialnia,


Piętro:


  • 2 sypialnie,

  • toaleta.


Mieszkanie nr 2:


  • kuchnia,

  • łazienka,

  • salon,

  • sypialnia.


Oba mieszkania są całkowicie niezależne, co zapewnia prywatność i wygodę.

Ogrzewanie i media:


  • każde mieszkanie posiada osobny piec gazowy (Vaillant - dwufunkcyjny),

  • niezależne liczniki prądu,

  • woda rozliczana wspólnie (z możliwością przekształcenia na osobne liczniki),

  • dom został ocieplony, co gwarantuje niskie koszty eksploatacji.


Działka i otoczenie:
Powierzchnia działki wynosi 635 m².


  • na posesji znajduję się drewniana altana ogrodowa, idealna na letnie spotkania z rodziną i przyjaciółmi,

  • garaż z piwnicą o powierzchni 30 m²,

  • pomieszczenia gospodarcze o powierzchni 21 m², przylegające do domu, które można przeznaczyć np. na warsztat, przechowywanie narzędzi czy sprzętów rekreacyjnych,

  • z działki rozpościera się piękny widok na jezioro,

  • do samej linii brzegowej jest zaledwie 70 metrów - kilka kroków dzieli Cię od spacerów, kąpieli czy wędkowania.


Lokalizacja:
Sępólno Krajeńskie to spokojne i urokliwe miasto z dostępem do pełnej infrastruktury; sklepów, szkół, przedszkoli, punktów usługowych oraz komunikacji. Połączenie natury i miasta sprawia, że jest to miejsce wyjątkowe - cicha, jezioro i zieleń w zasięgu ręki, a jednocześnie wszelkie udogodnienia niezbędne do codziennego życia. 

To idealna propozycja dla osób, które szukają domu w pięknym otoczeniu natury, a jednocześnie chcą mieć możliwość wynajmu i dodatkowego dochodu. 

Jeśli rozważają Państwo zakup nieruchomości z pomocą kredytu my również pomagamy go uzyskać !!!

Skontaktuj się, aby umówić się na prezentację i przekonać się, jak wyjątkowa jest ta nieruchomość.

Kontakt:
Magdalena Stachowicz
tel. 576-668-300
magdalenas@nieruchomosci-apartament.pl

Kontaktując się z agentem odpowiedzialnym za ofertę, koniecznie zapytaj jakie są warunki współpracy z naszym biurem oraz co w związku ze współpracą zapewniamy.
Dbając o bezpieczeństwo klientów sprzedających, a często także na ich wyraźne życzenie, nie podajemy adresów nieruchomości bez podpisania uprzednio umowy o pośrednictwo w kupnie lub najmie.

Prowizja jest uzgadniania indywidualnie, na spotkaniu i zależy od zakresu wykonywanych obowiązków na rzecz klienta zamawiającego.

Wszelkie podane przez Biuro informacje nie są ofertą w rozumieniu Kodeksu Cywilnego.

Zgodnie z Ustawą z dnia 26 lipca 2024 r. o zmianie ustawy o prawie autorskim i prawach pokrewnych, ustawy o ochronie baz danych oraz ustawy o zbiorowym zarządzaniu prawami autorskimi i prawami pokrewnymi, wykorzystywanie autorskich pomysłów, rozwiązań, kopiowanie, rozpowszechnianie zdjęć, fragmentów grafiki, tekstów opisów w celach zarobkowych, bez zezwolenia autora jest zabronione i stanowi naruszenie praw autorskich oraz podlega karze. Znaki towarowe i graficzne są własnością firmy Nieruchomości Apartament.

Kontakt do opiekuna:

NIERUCHOMOŚCI APARTAMENT

MAGDALENA STACHOWICZ
Nieprawidłowy adres E-mail
Mapa

Strona korzysta z plików cookie w celu realizacji usług zgodnie z Polityką prywatności. Możesz określić warunki przechowywania lub dostępu do cookie w Twojej przeglądarce.