dom | duża działka | dla dwóch rodzin | cicha okolica | wieś | 138,18m2 | ogród
Na sprzedaż przestronny dom wolnostojący z dużą działką - Ciężkowo, gm. Szubin
Oferuję na sprzedaż dwukondygnacyjny dom wolnostojący o powierzchni użytkowej 138,18 m², położony w miejscowości Ciężkowo (gmina Szubin).
Nieruchomość znajduje się na dużej, prostokątnej i w pełni ogrodzonej działce o powierzchni 2300 m².
Na terenie posesji oprócz domu znajduje się także budynek gospodarczy (72,95 m²) oraz altana.
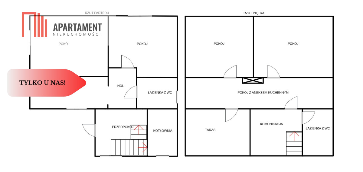
Rozkład pomieszczeń:
Parter - ok. 69 m²
*hol - 10,5 m²
*pokój - 19,5 m²
*pokój - 15 m²
*kuchnia - 10 m²
*łazienka - 4 m²
*przedpokój - 4 m²
*kotłownia - 6 m²
Piętro - ok. 69 m²
*salon z aneksem kuchennym - 26 m²
*pokój - 17,5 m²
*pokój - 14 m²
*łazienka - 5 m²
*komunikacja - 6,5 m²
Atuty nieruchomości:
✅ budynek ocieplony
✅ plastikowe okna + rolety zewnętrzne
✅ dach pokryty blachodachówką
✅ instalacja fotowoltaiczna 3,5 kW
✅ ekologiczne ogrzewanie - piec na pellet
✅ przydomowa oczyszczalnia ścieków
Dom jest funkcjonalny i przestronny, a układ pomieszczeń pozwala na różne możliwości aranżacyjne - istnieje opcja wydzielenia dwóch niezależnych mieszkań.
To idealne rozwiązanie dla dużej rodziny lub osób szukających nieruchomości z potencjałem inwestycyjnym.
Działka:
Częściowo utwardzona kostką brukową, w dalszej części zadbany ogród z licznymi drzewami, krzewami owocowymi i ozdobnymi. Teren zapewnia prywatność, przestrzeń i kontakt z naturą.
Lokalizacja:
Nieruchomość położona przy drodze asfaltowej w cichej i spokojnej okolicy, w sąsiedztwie zabudowy jednorodzinnej.
10 minut do zjazdu na S5 na trasie Bydgoszcz- Poznań
To doskonała propozycja dla osób, które szukają przestronnego domu w zielonej i spokojnej lokalizacji z nowoczesnymi i ekologicznymi rozwiązaniami.
Zapraszam do kontaktu i na prezentację.
Agnieszka Śliwińska
Ekspert ds. nieruchomości
tel. 575 017 070
Kontaktując się z agentem odpowiedzialnym za ofertę, koniecznie zapytaj jakie są warunki współpracy z naszym biurem oraz co w związku ze współpracą zapewniamy.
Dbając o bezpieczeństwo klientów sprzedających, a często także na ich wyraźne życzenie, nie podajemy adresów nieruchomości bez podpisania uprzednio umowy o pośrednictwo w kupnie lub najmie.
Prowizja jest uzgadniania indywidualnie, na spotkaniu i zależy od zakresu wykonywanych obowiązków na rzecz klienta zamawiającego.
Wszelkie podane przez Biuro informacje nie są ofertą w rozumieniu Kodeksu Cywilnego.
Zgodnie z Ustawą z dnia 26 lipca 2024 r. o zmianie ustawy o prawie autorskim i prawach pokrewnych, ustawy o ochronie baz danych oraz ustawy o zbiorowym zarządzaniu prawami autorskimi i prawami pokrewnymi, wykorzystywanie autorskich pomysłów, rozwiązań, kopiowanie, rozpowszechnianie zdjęć, fragmentów grafiki, tekstów opisów w celach zarobkowych, bez zezwolenia autora jest zabronione i stanowi naruszenie praw autorskich oraz podlega karze. Znaki towarowe i graficzne są własnością firmy Nieruchomości Apartament.
* Przestronny dom na dużej działce dla 2 rodzin
lokalizacja: Ciężkowo
664 000,00 PLN
4 805,33 PLN
Dane szczegółowe
- Typ transakcji: sprzedaż
- Typ nieruchomości: Dom
- Lokalizacja: Ciężkowo
- Powierzchnia:138,18 m2
- Liczba pokoi: 5
- Rok budowy: 1970
- Piętro: 1 z 1
-
Powierzchnia działki:
2 300 m2
- Numer oferty: 160372
- Cena: 664 000,00 PLN
- Cena za m2: 4 805,33 PLN
Opis nieruchomości
Film o nieruchomości
Kontakt do opiekuna:
NIERUCHOMOŚCI APARTAMENT